
70986 B Line Lambton Shores, ON N0M 1T0
-
OPENSun, Mar 81:00 pm - 3:00 pm
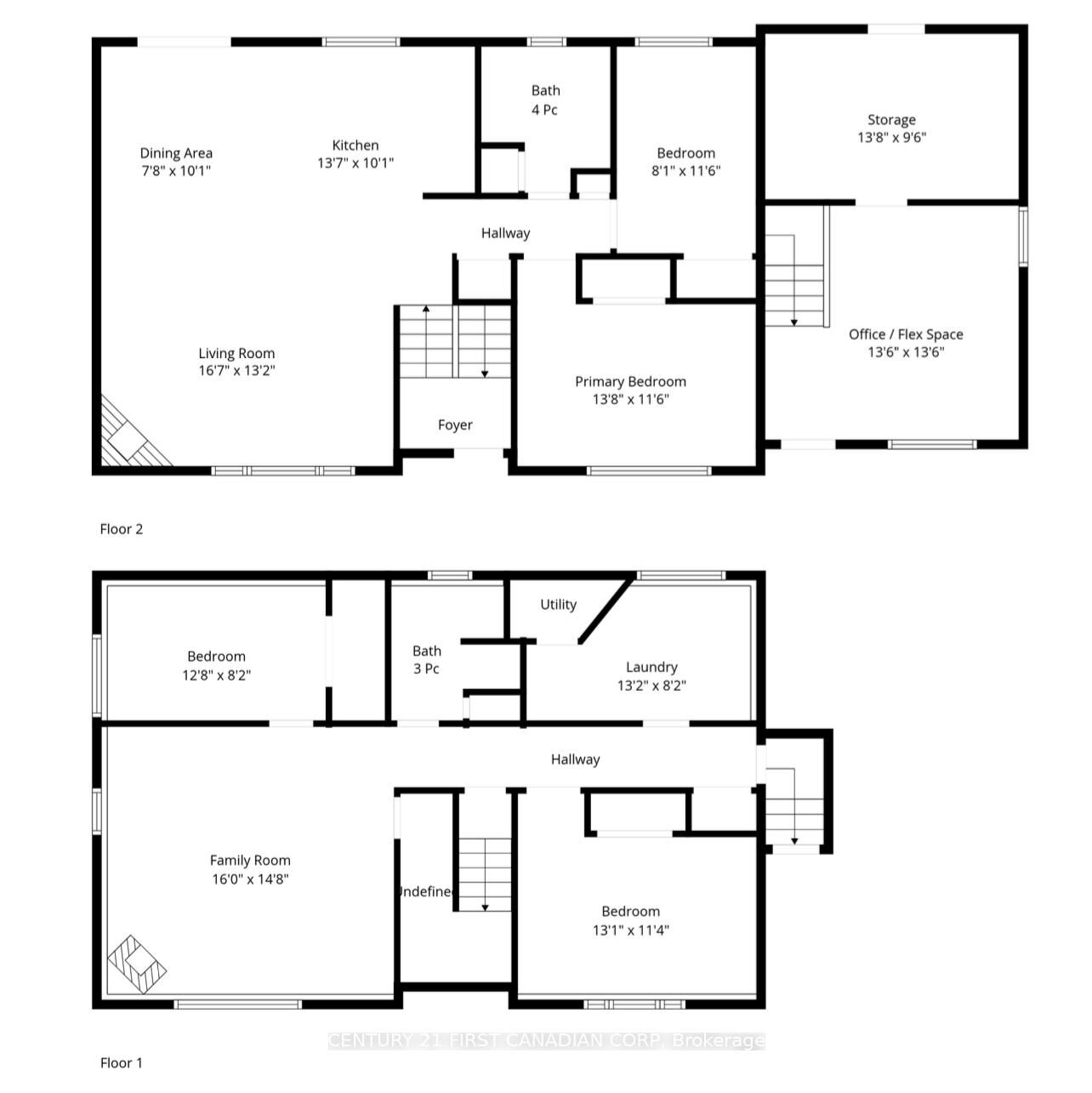
Description
X12834168
$2,936(2025)
1.45 acres
Single-Family Home
2-Storey
Clear, Trees/Woods, Lake, Pasture, Panoramic
Grand Bend
Listed By
Paige McCann, CENTURY 21 First Canadian Corp. Brokerage
PropTX
Last checked Mar 7 2026 at 4:46 AM GMT+0000
- Sump Pump
- Storage
- In-Law Capability
- Primary Bedroom - Main Floor
- Fireplace: Natural Gas
- Foundation: Poured Concrete
- Heat Pump
- Other
- Full
- Finished
- None
- Vinyl Siding
- Roof: Shingles
- Utilities: Municipal
- Sewer: Septic
- Fuel: Gas
- Energy: Energy Certificate: No
- None
- Private
- Private Triple
- 2